Abstract
Rising global temperatures have worsened climatic conditions, reducing human habitat comfort, especially in hot and humid regions. Yet historical and cultural heritage buildings achieve comfortable microclimates without active climate control. This study uses field measurements and ENVI-met simulations to identify passive climate adaptation strategies in such buildings in China’s hot and humid areas, aiming to inform design in similar climates. Results show that: (1) alleyways significantly improve courtyard microclimates; (2) through-type alleyways enhance summer conditions by promoting airflow; (3) microclimate benefits are greatest when the Aspect Ratio (AR) is below 0.5; (4) enclosed courtyards with solid-boundary alleyways perform best in microclimate regulation.
Similar content being viewed by others
Introduction
With the rapid advancement of global urbanization, urban construction density has significantly increased, resulting in increasingly compact urban spaces and insufficient buffer zones necessary for mitigating adverse climatic effects such as urban heat islands1. While numerous scholars have proposed strategies to improve the urban microclimate through spatial planning focusing on factors such as street space dimensions2 and building spacing3. These design interventions are often lacking sufficient adaptation to local climatic conditions. This limitation undermines their effectiveness across diverse urban contexts, leading to widespread implementation failures and the persistent intensification of urban heat island effects.
Therefore, identifying climate-responsive spatial strategies tailored to specific regional climates has become crucial for regulating microclimatic conditions in local urban environments. While advancements in modern materials science and architectural technology can partially optimize indoor building microclimates4,5,6 and reduce dependence on air conditioning, the construction and R&D processes still entail substantial environmental pollution. Consequently, scholars have increasingly turned their attention to rural areas which regions that predate cities and operate with lower technological inputs to investigate how traditional buildings maintain relatively comfortable indoor and outdoor microclimates without reliance on modern mechanical systems, effectively adapting to harsh climatic conditions. In this context, the passive microclimate adaptation techniques employed in traditional architecture have been extensively validated through empirical studies7,8. By combining field measurements and numerical simulations, researchers have identified a wide range of spatial prototypes9, particularly in extreme climate zones such as monsoon regions10, cold-dry areas11, and hot-dry climates5,12, offering valuable guidance for sustainable urban development. For instance, microclimate measurement and simulation analyses have enabled scholars to derive energy-efficient retrofitting strategies for traditional buildings in Mediterranean arid climates13. Despite the breadth of research on passive design in traditional architecture, studies remain predominantly focused on hot-dry regions14, while humid-hot climates which is a globally significant climatic zone have received comparatively little attention and thus warrant greater scholarly focus.
To address this objective, we selected a traditional Tujia settlement situated in the core zone of China’s hot-humid climate region as a case study to identify spatial patterns applicable to similar climatic contexts. The Tujia people, one of China’s 56 officially recognized ethnic minorities, are predominantly distributed across the Wuling Mountains at the intersection of Hubei, Hunan, Sichuan, Guizhou, and Chongqing which are widely regarded as a representative hot-humid climatic zone in China15. Traditional Tujia settlements are notably well-preserved. While most are located in Chongqing, Hubei, Hunan, and Guizhou, those in Sichuan Province are uniquely secluded within mountainous terrain, exhibiting distinct architectural and spatial characteristics that more authentically reflect indigenous Tujia cultural traits compared to their counterparts elsewhere16,17. For these reasons, this study focuses specifically on traditional Tujia settlements in Sichuan. Existing research on these settlements has primarily examined their spatial morphology and its interrelations with cultural practices and natural environments18,19. However, no study has yet systematically extracted typical spatial prototypes from a climate adaptive perspective. This research therefore fills a critical gap in the literature on traditional Tujia settlements. As previously noted, narrow urban spaces such as streets play a vital role in microclimate regulation20. In traditional settlements, the functional equivalent of urban streets is the alleyway which is a key element through which passive climatic performance can be analyzed.
Alleyways represent a fundamental spatial component in both urban and rural human settlements, characterized by their widespread presence and functional significance. These linear spaces play a critical role in facilitating movement and organizing the spatial structure of settlements, which constitutes the primary focus of contemporary alleyway research21,22. Beyond this, scholars have explored the broader contributions of alleyways to urban environments from multiple perspectives, including landscape aesthetics23,24, spatial renovation and revitalization25,26, cultural value27,28, functional performance29,30, as well as formal attributes such as shape and color31. While some studies have identified the potential of alleyways in climate regulation32, there remains a lack of in-depth investigation into how specific spatial configurations such as morphological features, compositional elements, and dimensional parameters influence microclimatic conditions. This study aims to address this gap by systematically examining the mechanisms through which alleyway design impacts local microclimate regulation.
Among the various spatial parameters influencing alley microclimates, the aspect ratio (AR) stands out as the most critical factor and has been extensively investigated in urban studies. In urban courtyard research, AR ratio is well established as a key determinant of microclimatic performance. Furthermore, in the study of street canyons which is the most prevalent form of narrow urban space variations in AR significantly affect airflow enhancement and solar radiation shielding33. Research has demonstrated that physiological equivalent temperature (PET), a key indicator of human thermal comfort, reaches optimal levels in streets with an AR of 0.5, providing quantifiable evidence for climate-responsive design1,34. Importantly, the “ENERGY AND RESOURCE EFFICIENT URBAN NEIGHBOURHOOD DESIGN PRINCIPLES FOR TROPICAL COUNTRIES Practitioner’s Guidebook” emphasizes climate adaptability as a cornerstone of sustainable community development. It further illustrates through visual representations how specific urban spatial configurations regulate microclimatic conditions, noting that narrower streets corresponding to higher AR will increase the number of solar reflections and enhance radiation retention, thereby reducing outdoor thermal comfort35. These findings collectively establish a robust theoretical foundation and methodological feasibility for the present study. Nevertheless, existing research predominantly focuses on urban contexts, with limited attention given to rural settlements in broader countryside regions. Moreover, while many studies analyze the microclimate within alleyways themselves, few explore how variations in alley morphology influence the microclimatic conditions of adjacent or interconnected spaces. Addressing this gap constitutes the central focus of this research.
In conclusion, enhancing the passive regulation capacity of building microclimates presents an effective strategy for mitigating current energy consumption and environmental pollution. Particularly, identifying key spatial prototypes that enable zero-energy performance in traditional architecture holds significant importance. Accordingly, this study is primarily oriented toward this objective, selecting traditional Tujia ethnic buildings located in the core zone of China’s humid-hot climatic region as the research subject. Through multi-variable simulation and comparative analysis, the study aims to identify the most suitable alleyway spatial configuration for this specific climatic context. To achieve the aforementioned objectives, this study will investigate the following three research questions:
-
(1)
What is the underlying mechanism through which alleyway configurations influence the microclimate environment of courtyard spaces?
-
(2)
Which spatial forms and dimensional scales of alleyways are most effective in regulating microclimatic conditions in humid-hot regions?
-
(3)
What is the optimal alleyway spatial prototype that can be applied to urban development in humid-hot climatic zones?
Methods
This study aims to identify an alleyway spatial pattern suitable for humid-hot regions by using the Tujia ethnic group as a representative case, while clarifying specific spatial forms, compositional elements, and dimensional scales. To achieve this, the research is structured around three key phases: field investigation and microclimate measurement, variable model simulation, and spatial synthesis. First, field investigations are conducted to document the spatial configurations of traditional Tujia alleyways, and on-site microclimate measurements are carried out to assess their effectiveness in regulating local climatic conditions. Second, based on the observed spatial characteristics, variable models incorporating compositional elements, spatial form, dimensional scale, and material properties are developed. These models are then simulated using ENVI-met software, and the results are compared to determine the most effective alleyway configuration for microclimate regulation. Finally, through spatial analysis and synthesis, an optimal alleyway spatial prototype applicable to humid-hot regions is proposed, providing actionable guidance for sustainable urban development in similar climatic zones (Fig. 1).
Research framework.
Study site
This study focuses on four Tujia ethnic townships—Longquan, Dukou, Sandun, and Qishu—and FanKuai Town in Xuanhan County, Dazhou City, Sichuan Province, where the Tujia people are concentrated in northeastern Sichuan (Fig. 2). This region shares geographical connections with other Tujia-dense areas while exhibiting distinct environmental differences. Such characteristics facilitate the exploration of how the same ethnic culture can give rise to diverse spatial features under varying climatic conditions, thereby highlighting the adaptive nature of traditional settlements to their respective environments. Based on the traditional village lists of Sichuan Province and China, we selected Shuigucun (31.692°N, 108.442°E), Tuxi Village (31.694°N, 108.238°E), and Dawan Village (31.629°N, 108.007°E) as representative sample settlements for this study to conduct detailed investigations and analyses. These villages were chosen for their prominence in the region. Additionally, we selected 1–2 buildings in each of these three sample settlements for detailed architectural mapping and microclimate measurements.
Study area.
Using Climate Consultant 6.036, we analyzed the climatic and environmental characteristics of the Tujia ethnic group’s distribution area in northeastern Sichuan. First, we downloaded the meteorological data for this region (CHN_Sichuan.Nanchong.574110_CSWD) from the EnergyPlus website (https://energyplus.net/). Subsequently, we imported this data into Climate Consultant 6.0 to obtain detailed historical meteorological records. The analysis reveals (Figs. S1–S5) that the northeastern Sichuan region exhibits a distinct hot-summer and cold-winter climate. The coldest month is January, with an average temperature of 6.97 °C, while the hottest month is July, with an average temperature of 27.39 °C (Figs. 3 and 4). These findings indicate that addressing both the cold winter and hot summer conditions is a critical consideration for local residents when designing settlement spaces. Particularly, the extreme summer heat significantly impacts human thermal comfort.
Monthly temperature changes.
The daily average temperature variation throughout the year.
Field investigation
Different methods of field investigation were used according to different spatial scales. Obtain topographic data of research samples and surroundings through BIGmap satellite map, and draw topographic maps. The spatial distribution characteristics were obtained by UAV aerial photograph. The architectural spatial characteristics were obtained by infrared distance meter and other methods. Obtain the application of building materials through camera photography.
Spatial drawing
Spatial mapping is the most important research method in this study. Spatial mapping is used to record the distribution of sample settlements, architectural space and other characteristics, to analyze the relationship of the natural environment and spatial feature, so as to obtain the environmental adaptation characteristics of Amdo Tibetan grassland dwellings.
Filed measurement
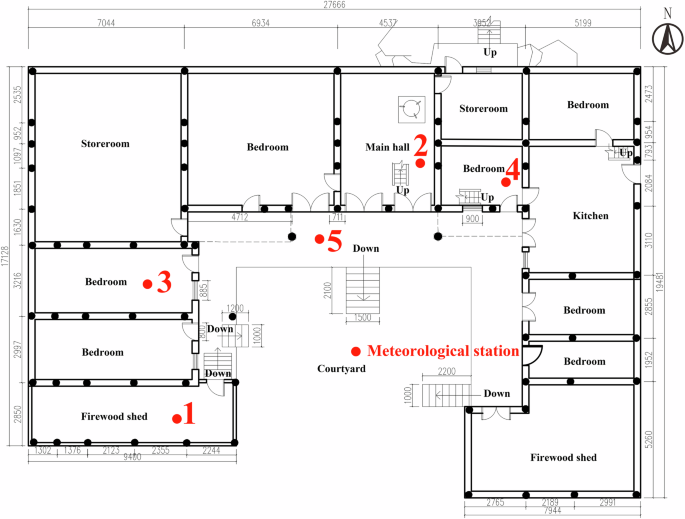
Based on the spatial characteristics of traditional Tujia settlements in northeastern Sichuan, where buildings are typically dispersed, we selected two groups of buildings for microclimate measurements: one group from Dawan Village with wooden exterior walls and another group from Shuigu Village with brick and stone exterior walls. A total of six measurement points were established in each of the two courtyards, along with seven additional points inside the building (Figs. 5 and 6).
Layout diagram of measurement points in Shuigu village.
Layout diagram of measurement points in Dawan village.
Based on the background environmental analysis (The data is sourced from https://energyplus.net/), this study selected July—the hottest month in the region—as the period for conducting on-site microclimate measurements. According to the daily average temperature variations in July (Fig. 7), the highest daily average temperature occurred on July 31st, reaching 31.8 °C, which significantly exceeds the human comfort temperature threshold. Consequently, this study determined July 31st as the optimal measurement date. Continuous data recording takes place over a 12-h period from 7:00 to 19:00. The measured data were recorded every minute, with 1 h as the test interval. The average value of the five data obtained from a continuous 5 min was used as the measured value for the period.
Daily temperature variation in July.
The meteorological station (YSBXC, Resolution: 0.1 °C, Accuracy: ±0.3 °C) is strategically positioned at an elevated location within the settlement, while a Hand Meteor meter (YS-SQXY, Resolution: 0.1 °C, Accuracy: ±0.1 °C) and a Photoelectric Radiometer (YS-SJYZ, Resolution: 1 w/m2, Accuracy: ±3%) are precisely placed at the centroid of survey points. The height of 1.5 m has been chosen for all sensors as it represents the optimal sensitivity for human thermal perception.
ENVI-met modeling
ENVI-met is widely recognized as a leading tool for microclimate simulation in urban environments at small to medium scales, and it has been extensively applied in studies on the microclimatic adaptability of outdoor spaces within traditional settlements. Its reliability and accuracy in such contexts have been well validated by numerous studies7,8,9. In this research, ENVI-met version 5.8.0 was employed for all simulations.
The geographical coordinates (108.2°E, 31.6°N) were defined based on the location of the research subjects. The computational domain was set to a network scale of 50 × 50 to match the spatial dimensions of the target courtyard, while the grid resolution (x = 1, y = 1, z = 1) was determined according to the spatial characteristics of the alleyway. According to the characteristics of existing traditional buildings, key environmental parameters—including building materials ([0200B3] Brick wall, [0200R1] Tile), vegetation, DEM/terrain, heat sources, soil, and surface conditions—were configured accordingly. Receptors were placed at the central measurement points within the courtyard to serve as reference locations for validating the simulation results.
July 31st and December 26th were selected as the simulation dates representing the hottest and coldest days, respectively. The simulation start time was set to 0:00. Considering that ENVI-met requires a 1-h initialization period, the total simulation duration was configured to 25 h in order to capture a complete 24-h cycle. The simulation mode was set to Basic Meteorology. Air temperature, relative humidity, wind speed, and wind direction—key parameters of the boundary conditions—were primarily derived from data collected by the meteorological station located at the highest elevation within the settlement.
First, the original models were constructed using SketchUp, with their spatial characteristics summarized in Table 1. Initial spatial analysis revealed that traditional Tujia-style courtyards in both Shuigu Village and Dawan Village feature distinct alleyway spaces. Although the two villages differ in structural configuration, they exhibit similarities in fundamental spatial organization. Specifically, the alleyways are covered at the top, bounded on one side by solid walls and on the other by semi-open structural columns. A narrow-enclosed passage connects these spaces. The primary difference lies in the distribution pattern: in Shuigu Village, alleys are arranged on both sides of the courtyard, whereas in Dawan Village, they form a continuous spatial sequence (Fig. 8). Furthermore, preliminary spatial analysis suggests that narrow alleyway spaces may generate a funneling effect, which accelerates airflow. In contrast, open alleyways can expand the effective ventilation area and facilitate greater air circulation, thereby potentially improving the microclimatic conditions within the courtyard (Figs. 9 and 10). However, to confirm these assumptions, targeted microclimate measurements and simulation analyses are required to further elucidate the microclimate-regulating function of alleyway spatial configurations in humid and hot regions. In this study, ground material was held constant and not considered a variable parameter. Both courtyard groups and alleyways were uniformly covered with dark, flat soil, and the surface reflectivity was consistently set to 10% across all simulations.
The spatial form of the sample courtyard and alleyways (left is Shuigu Village, right is Dawan Village).
Prediction of the microclimate regulation mechanism in Shuigu village alleys.
Prediction of the microclimate regulation mechanism in Dawan village alleys.
To clarify the microclimate-regulating effects of alleyways on courtyards in humid and hot regions, and to identify the key spatial elements involved, we constructed four variable models for traditional buildings in Shuigu Village and three variable models for those in Dawan Village. Existing studies have demonstrated that the AR and spatial form significantly influence microclimate regulation within alleyway spaces21,22,37. Accordingly, we modified the AR and spatial form of the existing alleyway structures individually to construct a single-variable model matrix (Fig. 11), followed by numerical simulation analysis. Detailed parameters of the variable models are presented in Table 2.
Single-variable model matrix.
The simulation results indicate that the alleyways in Dawan Village and Shuigu Village exert a significant regulatory effect on the hot and humid climate. During summer, they effectively moderate temperature and humidity levels within the courtyards, while maintaining a relatively comfortable microclimate during winter. To validate the reliability of the model, we employed the root mean square error (RMSE) (Formula 1) and the agreement index (d) (Formula 2) as evaluation metrics. As illustrated in Fig. 12, the simulated results demonstrate a strong correlation with the measured data, with consistency indices (d) of 0.84 and 0.83, both falling within the 0.8–0.9 range, which indicates good model performance. However, although the consistency index meets the required criteria, the RMSE values appear relatively high. According to the existing literature38, acceptable RMSE thresholds are typically classified into two levels: <1 °C and <2 °C, with most studies adopting <1 °C as the standard for reliable simulations. Our analysis reveals that the largest discrepancies occur between 02:00 and 09:00 corresponding to nighttime hours when measured temperatures are significantly lower than simulated ones. This deviation is attributed to the limited spatial scale of the ENVI-met model, combined with the rapid nocturnal heat exchange between the traditional buildings and their surrounding mountainous environment during summer nights, leading to faster cooling in reality than in the simulation. To further validate the simulation accuracy under these conditions, the index of agreement (d) was employed as a complementary metric. The obtained d values of 0.84 and 0.83, which indicate strong agreement between observed and simulated data, support the overall credibility of the results. These findings confirm that the model is credible and suitable for further simulation analysis. By comparing the simulated data with the measured data, it can be observed that the measured values were significantly lower than the simulated results before 12:00. Conversely, in the afternoon, the simulated data slightly underestimated the measured values. These discrepancies primarily arise because the ENVI-met simulation cannot accurately account for the heat radiation and absorption characteristics of building walls and ground surfaces. Consequently, the natural ground’s heat absorption during summer is overlooked, resulting in higher nighttime temperatures. During daytime hours, the heat radiated from the ground and walls into the air is not adequately captured, leading to an underestimation of temperature in the simulation. Although ENVI-met has certain limitations in the simulation process, these do not affect the validity of the variable models used in this study. Since the materials of the ground and walls remain unchanged across all scenarios, the accuracy of the comparative analysis of the simulation data can be maintained.
Fitting analysis between simulated and measured results (Left: Shuigu Village; Right: Dawan Village).
yi denotes the measured value, \({\hat{y}}_{i}\) represents the simulated value, and n is the total number of samples. A lower RMSE value indicates higher model accuracy.
fi and yi denote the simulated and measured values, respectively, \(\bar{f}\) and \(\bar{y}\) represent their corresponding mean values. Model accuracy increases as the index of agreement (d) approaches 1.
Results
Human Comfort Index (ICHB)
To more clearly illustrate the influence of alleyway spatial variations on indoor and outdoor environmental comfort, we calculated the human thermal comfort index (Formula 3) for the study area. The results indicate that the thermally comfortable range during summer corresponds to temperatures between 20 °C and 24 °C and relative humidity levels from 60% to 70%. Comfort increases as temperature and humidity approach these ranges (Table 3). To ensure clarity and conciseness in subsequent presentations, the human comfort index will not be repeatedly referenced; instead, the discussion will focus on how alleyway configurations affect microclimatic comfort by evaluating how closely temperature and humidity values approach the established comfort range.
In this equation, ICHB refers to the Human Comfort Index, T denotes the ambient temperature, RH represents the ambient relative humidity, and V signifies the ambient wind speed.
Alleyways significantly regulate high temperature and humidity in hot-humid regions during summer
Through field measurements and analysis, it is evident that the effective air exchange function of the alleyways significantly improves the thermal conditions both within courtyards and indoor spaces. The maximum air temperature of environment reaches 39.5 °C, while the minimum indoor temperature at the same time is 29.8 °C, resulting in a difference of 9.7 °C. This corresponds to a regulation efficiency of 24.5%. As can be seen, the implementation of a specialized spatial layout effectively achieves temperature regulation in hot climatic conditions (Fig. 13).
Comparison and analysis of temperature changes at various monitoring points in Dawan Village.
Furthermore, wind environment measurements revealed a significant increase in air velocity within the alleyway areas. As shown in Fig. 14, the wind environment within alleyways is markedly better than that of the surrounding open areas, with the maximum daily wind speed reaching 2.8 m/s. Particularly during the hottest part of the day, the improvement in the alleyway wind environment is especially pronounced. This further confirms that alleyways have a positive impact on improving the wind environment within building courtyards. Particularly in hot and humid regions, this effect can effectively mitigate adverse microclimate conditions inside the courtyards.
Daily variations of wind speed and air temperature at the alleyway.
Alleyways also significantly regulate the cold, humid winter climate in hot-humid regions
Based on the measurement results obtained during the summer season, it is evident that the alleyway plays a significant role in regulating the courtyard’s microclimate environment. This raises the question: can the alleyway maintain its effectiveness in microclimate regulation during the winter season? Simulation results indicate that the air temperature within the courtyard during winter nights is notably higher than that of the surrounding environment, particularly at 6:00. In the simulated courtyard of Shuigu Village, the air temperature was 3.2 °C higher than the ambient temperature, achieving a regulation efficiency of 160%, which demonstrates a highly significant thermal improvement. This effect can be primarily attributed to the ability of alleyways to redirect wind flow, channeling cold winter winds from the front towards both sides. As a result, the amount of cold air entering the courtyard is reduced, thereby creating a more comfortable microclimate during winter nights and contributing to increased indoor thermal comfort (Fig. 15).
Winter air temperature simulation results of Shuigu and Dawan Village.
After 12:00, as solar radiation gradually intensifies, the air temperature within the courtyard becomes slightly lower than the ambient temperature due to shading from surrounding buildings. However, the difference is minimal, and the courtyard temperature remains essentially consistent with the external environment. These findings indicate that in the winter climate of humid and hot regions, alleyways function as a “barrier,” effectively reducing wind speed. Particularly between 3:00 and 8:00 at night, the wind speed inside the courtyard is nearly 1 m/s lower than that of the surrounding area. During daytime hours, while the ambient wind speed decreases in a stepwise manner, the internal wind environment of the courtyard remains relatively stable. This suggests that alleyways can regulate the volume of incoming wind within a certain range, thereby maintaining a stable wind environment and contributing to thermal stability within the courtyard (Figs. 16 and 17).
The alleyway can direct the direction of the wind.
Winter wind speed simulation results of Shuigu and Dawan Village.
Simulation results of the variable model
To further validate the regulatory effect of alleyways on the courtyard microclimate and elucidate the underlying mechanisms, four variable models for Shuigu Village and three variable models for Dabian Village were developed based on spatial characteristics. These models were used to investigate the influence of AR, location, and enclosure conditions on the microclimate regulation performance of alleyways.
As the AR increases, the alleyway becomes narrower and the spatial configuration more compact. Simulation results indicate that during winter, when wind primarily flows from the southern to the northern part of the courtyard, the alleyway exerts a relatively weak influence on wind direction regulation. Consequently, increasing the AR does not significantly affect the wind environment (Fig. 18), nor does it lead to notable changes in courtyard air temperature (Fig. 19). In contrast, during summer, when wind direction aligns with the orientation of the alleyway, variations in AR can substantially influence the wind environment, thereby altering the microclimate within the courtyard (Fig. 20). Research indicates that an increase in AR leads to a significant rise in courtyard temperature in Shuigu Village compared to the original model, reaching 0.6 °C at 8:00. In contrast, no notable temperature change is observed in Dawan Village courtyards. This difference can be attributed to the spatial configuration of Shuigu Village, where symmetrical alleyways on both sides form a more enclosed courtyard space with higher enclosure levels. These alleyways serve as key pathways for heat exchange between the courtyard and the external environment. As AR increases, these passages narrow, reducing heat exchange efficiency and consequently causing a temperature rise within the courtyard. On the other hand, Dawan Village features a relatively open courtyard layout with a distinct wind vent located in the upper left corner. The internal wind environment is less influenced by alleyway configurations, resulting in minimal impact of AR variation on the courtyard microclimate (Fig. 21). Therefore, in compact and enclosed courtyard layouts, increased AR may reduce microclimate regulation effectiveness in humid and hot regions during high-temperature periods, whereas the effect remains insignificant in other contexts.
6:00 wind speed (left) and temperature (right) in the courtyard of Shuigu Village in winter.
Comparative analysis of winter variable models (V1 & V5) and the original model in terms of temperature.
Comparative analysis of summer variable models (V1 & V5) and the original model in terms of temperature.
Wind speed in Dawan Village at 12:00 in winter (left) and at 17:00 in summer (right).
Building upon the previous set of variable models, we separately reduced the AR of alleyways in both Shuigu Village and Dawan Village and re-conducted the simulations. The results indicated that during winter, the microclimate environments of courtyards in both villages remained largely unchanged under reduced alley AR conditions (Fig. 22). The consistency index between the original model and the variable model simulation data was 1 for both locations. This suggests that a reduction in AR does not have a significant effect on the winter microclimate environment of these courtyard settings.
Winter simulation temperature comparison.
In summer, notable changes were observed. As the aspect ratio (AR) decreased, the alleyways became wider, allowing increased airflow (Fig. 23), which effectively improved the courtyard microclimate. In the relatively enclosed courtyards of Wugu Village, a reduction in alleyway AR led to a significant improvement in the internal microclimate. The daily average temperature decreased by 0.12 °C, with the maximum temperature difference occurring at 6:00, reaching 0.6 °C. Conversely, the more open courtyards of Dawan Village were less influenced by changes in alleyway AR, showing no significant variation in microclimate conditions (Fig. 24). Therefore, in humid and hot regions, reducing AR can serve as an effective strategy to enhance the microclimate of relatively enclosed courtyards.
Simulation results of the variable model at 17:00 in summer (left: Dawan Village, right: Shuigu Village).
Comparative analysis of summer simulation temperature.
The alleyways in Shuigu Village and Dawan Village share a common characteristic: one side is bounded by a building, while the other side features an open space formed by a colonnade. This distinctive spatial configuration constitutes the core focus and primary objective of the present study. To investigate whether such columned-structure alleys exert a positive regulatory influence on the microclimate within courtyards located in humid and hot regions, we developed a corresponding variable model—Entity boundary (V4 & V7). By comparing and analyzing the simulation data, we aimed to more accurately assess the role of colonnaded corridors in microclimate regulation within these courtyard settings. Research findings indicate that the degree of alley enclosure has minimal influence on the courtyard’s microclimate environment. This can be attributed to the primary function of the alleyway, which is to facilitate heat exchange between the interior and exterior of the courtyard. Since enclosure does not significantly alter the efficiency of this heat exchange process, the variable demonstrates limited impact on the overall courtyard microclimate (Fig. 25).
Comparison of temperature between winter(left) and summer(right).
Although the impact of colonnaded alleyways and enclosed alleyways on the courtyard microclimate did not exhibit significant differences, our simulation results revealed an intriguing phenomenon. When the colonnaded alleyway was enclosed, its interior became largely isolated from the external environment, resulting in the formation of low-temperature valleys or high-temperature peak shadows outdoors. This transformation contributed to the creation of a more comfortable outdoor activity space (Table 4). The analysis indicates that during winter, the temperature within the alleyways of Dawan Village was significantly higher compared to the original model, with a daily average increase of 7.7 °C. In Shuigu Village, the daily average temperature inside the alleyways rose by 2 °C compared to the original model. These findings suggest that when alleyway sides are enclosed, heat exchange between the interior and exterior is reduced, leading to the formation of a relatively closed environment that enhances the internal microclimate. As for summer, the simulation results of both the original and variable models showed minimal differences, with nearly identical daily temperature variation curves. Therefore, in the more open layout of Dawan Village, side-enclosed alleyways demonstrate greater potential for improving thermal comfort during cold winter conditions. Furthermore, a comparative analysis of the variable model simulation results between Dawan Village and Shuigu Village reveals distinct thermal performance characteristics. The alleyway temperatures in Dawan Village maintain a relatively high level throughout winter and exhibit minimal nocturnal decline. In contrast, Shuigu Village demonstrates a linear temperature decrease during the same period. This discrepancy can be attributed to the strong wind tunnel effect generated by the two opposing alleyways in Shuigu Village, which accelerates internal airflow and significantly influences the microclimate. During summer nights, Shuigu Village records higher temperatures than Dawan Village, while daytime values remain nearly identical. This phenomenon is primarily due to the more enclosed spatial configuration of Shuigu Village, which restricts nighttime heat dissipation by limiting air exchange between the alley interiors and the external environment, thereby sustaining elevated thermal levels (Fig. 26).
A: Comparison of summer simulated temperatures between the variable model 7 of Dawan Village and the original model. B: Comparison of winter simulated temperatures between the variable model 7 of Dawan Village and the original model. C: Comparison of summer simulated temperatures between the variable model 4 of Shuigu Village and the original model. D: Comparison of winter simulated temperatures between the variable model 4 of Shuigu Village and the original model. E: Comparison of winter simulated temperatures between the variable model 4 of Shuigu Village and the variable model 7 of Dawan Village. F: Comparison of winter simulated temperatures between the original model of Shuigu Village and the original model of Dawan Village. G: Comparison of summer simulated temperatures between the variable model 4 of Shuigu Village and the variable model 7 of Dawan Village. H: Comparison of summer simulated temperatures between the original model of Shuigu Village and the original model of Dawan Village.
In the comparative analysis of the original models, the daily average temperature of alleyways in Dawan Village during winter was higher than that in Shuigu Village, with the temperature variation curve consistently elevated throughout the day (Fig. 26-F). This difference can be attributed to the opposing alley layout in Shuigu Village, which creates a wind tunnel effect and deteriorates the wind environment within the alleyways during winter. Therefore, in alleyway design for humid and hot regions, it is advisable to avoid configurations that promote air convection.
As previously discussed, the spatial configuration of two adjacent alleyways in Shuigu Village is highly conducive to air convection and the formation of strong wind channels. To assess whether such wind channels influence the courtyard microclimate, we implemented a spatial offset design for the left and right alleyways within the courtyard and conducted simulation analyses under identical boundary conditions. The results indicate that spatial displacement does not significantly alter the microclimatic regulation capacity of the alleyways. Wind environment simulations (Fig. 27) demonstrate that each alleyway can independently form a wind channel, thereby having no substantial impact on the wind conditions within the courtyard interior.
Simulation results of the spatial offset design in Shuigu Village courtyard (left: winter; right: summer).
Discussion
With the global expansion of urbanization, human civilization has entered a new era. However, this does not imply that traditional practices should be entirely discarded. On the contrary, traditional wisdom serves as a crucial ideological foundation for the development of modern cities and societies. A key challenge now is how to achieve the protection and sustainable development of traditional settlements: should all elements be preserved, or should efforts focus on prioritized aspects? If so, what should these priorities be? These interrelated questions continue to shape the developmental trajectory of spatial research on traditional settlements. Although a significant body of research has examined the microclimate adaptability characteristics of traditional settlement spaces39, and has identified climate-responsive strategies such as rammed earth walls and sunrooms40, understanding of alleyways—a unique spatial element—remains limited. While the beneficial roles of alleys in facilitating wind channels and providing shading have been widely acknowledged22,25, scholars have yet to clearly define which specific alley types are best suited to particular environmental conditions. This study, based on microclimate simulation analysis of alleyways in traditional Tujia villages located in humid and hot regions, not only clarifies the regulatory role of alleyways in shaping the courtyard microclimate, but also, through multivariate comparative analysis, reveals how specific spatial attributes—such as AR, orientation, and openness—exhibit varying degrees of adaptability to distinct climatic conditions. By doing so, this research advances both alleyway studies and the broader field of microclimate adaptability in traditional settlements to a higher level of theoretical understanding.
Through comparative analysis of numerous variable models, this study reveals that factors such as entity boundaries and spatial displacement exert minimal influence on the courtyard microclimate in hot and humid regions, thereby rendering their impact negligible. Consequently, it can be concluded that the alleyway’s regulatory effect on the internal courtyard microclimate is predominantly determined by its AR—a relationship that has not been explicitly established in prior research. This finding represents a significant theoretical advancement of the study. Furthermore, this study clarifies how variations in AR—both increases and decreases—affect the efficiency of microclimate regulation within courtyards. Notably, in enclosed courtyards, changes in AR lead to significant differences in the regulatory impact of alleyways on the courtyard microclimate. In contrast, such effects are less pronounced in open courtyards. This differential response has not been previously documented in existing literature. The findings indicate that alleyways achieve optimal microclimate regulation efficiency when the AR ranges between 0.285 and 0.54. Furthermore, this study has identified an intriguing phenomenon: the transformation of colonnades into solid interfaces does not substantially alter the microclimate within the courtyard. However, it significantly enhances the microclimate regulation efficiency of the alleyways themselves. Enclosed alleys demonstrate superior performance compared to open ones in humid and hot regions. Therefore, in traditional settlement renewal projects within such climates, appropriate modifications—such as enclosing colonnades to form solid spatial boundaries—can be implemented. When lateral enclosure of the courtyard occurs, the central courtyard should remain relatively open, and measures should be taken to prevent air convection, thereby preserving the thermal stability provided by alleyways during winter.
The seasonal variation in microclimate regulation represents another key innovation of this study. In humid and hot regions, the alleyway’s influence on courtyard microclimate is most pronounced during summer, while its effect diminishes significantly in winter. This pattern is primarily governed by the directional characteristics of the wind environment. Moreover, the analysis reveals that enclosed courtyards exhibit enhanced thermal regulation by alleyways during hot summer periods—a finding consistent with previous studies on traditional settlement courtyards41. As a critical outdoor activity space, the courtyard’s microclimate environment directly influences human thermal comfort during outdoor activities. Consequently, traditional settlement residents have long emphasized the use of spatial elements to regulate courtyard microclimates42. However, previous studies predominantly focused on internal courtyard factors such as AR, underlying surface materials, spatial enclosure degree, vegetation coverage, and shading43,44,45, often overlooking the auxiliary roles played by external spatial elements—such as the alleyways highlighted in this study—in shaping courtyard microclimatic conditions.
In winter, the predominant south-to-north wind direction, combined with the lateral positioning of alleyways relative to courtyards, limits their capacity to divert or block cold winds. This results in direct exposure of courtyards to cold airflows, thereby undermining their microclimate regulation function. In contrast, during summer, the prevailing east-to-west wind direction aligns closely with the orientation of alleyways, enabling them to facilitate heat exchange between the courtyard interior and exterior. This dynamic significantly improves the microclimatic conditions within courtyards located in hot and humid regions. Therefore, the selection of alleyway configurations should be guided by the dominant wind directions in winter and summer, leveraging the wind duct effect of alleyways to optimize microclimate regulation within courtyards.
Comparative analysis reveals that the application of this study’s theoretical findings requires careful consideration of alleyway implementation contexts. Previous studies either failed to identify or inadequately defined the practical pathways for alleyway application46. Building upon existing research, this study advances the field by proposing concrete optimization strategies for alleyway design and utilization. Firstly, alleyways with physical boundaries demonstrate superior performance compared to columned-space alleyways. Simulation results indicate that both alleyway types exert limited influence on the courtyard’s internal microclimate. However, the microclimatic conditions within physically bounded alleyways are markedly better than those in columned alleyways, particularly during winter. The temperature inside these alleyways can reach approximately 15 °C, falling within the thermal comfort range for winter outdoor activities. Therefore, in urban settlement design within this region, physically bounded alleyways can serve as effective extensions of habitable outdoor space during colder seasons. Secondly, enclosed courtyards in hot and humid regions are more effective in facilitating the wind tunnel effect within alleyways, thereby enhancing air circulation and improving summer microclimatic conditions inside the courtyards. Therefore, urban settlement designs in such regions can benefit from emulating the layout of enclosed courtyards and interconnected alleyways found in Shuigu Village, offering an adaptive strategy to mitigate the challenges posed by high summer temperatures. Finally, this study identified a critical wind passage within the courtyard of Dawan Village (Fig. 25). The existence of this wind passage substantially diminished the microclimate regulation efficiency of the alleyways. Regardless of season—whether winter or summer—it hindered the formation of effective pressure differentials between the interior and exterior of the courtyard, leading to restricted airflow and inefficient heat exchange. Therefore, in the planning and construction of urban settlements in this region, potential wind passages should be proactively sealed to ensure that alleyways can fully perform their intended microclimate regulation function.
This study conducted a microclimate adaptability assessment of representative traditional buildings belonging to ethnic minorities—specifically the Tujia ethnic group—in hot and humid regions. The research integrated on-site microclimate measurements with numerical simulation techniques to evaluate climatic performance. Unique alleyway spaces within these courtyard structures were selected as key analytical elements to explore their adaptive relationship in response to local climate conditions. Although the study followed a rigorous methodological framework and logical progression, ensuring the reliability and feasibility of the findings, the conclusions offer both theoretical insights and practical implications. Nevertheless, the following limitations remain: This study focused exclusively on demonstrating the microclimate regulation capabilities of alleyways in hot and humid regions, without conducting comparative analyses with alleyway structures in arid-hot, temperate, and cold climatic zones. Consequently, it lacks a comprehensive understanding of how specific alleyway spatial configurations adapt to diverse regional climates. This limitation will be addressed through expanded comparative research in our future work. This study lacks essential empirical validation due to constraints in research duration and field conditions. As a result, the conclusions derived from this research could not be practically implemented or tested, limiting the verification of the findings. In future research, we aim to explore feasible opportunities for project implementation in the region, conduct post-occupancy performance evaluations, and thereby substantiate the validity of the current study’s outcomes. Limited sample size constitutes a limitation of this study. The research focused on traditional Tujia settlements located in the parallel valley region of northeastern Sichuan Province. The unique topography of this area gives rise to a distinct climatic pattern marked by hot and humid summers and cold, damp winters, which provided an ideal context for microclimate field measurements. As one of China’s representative ethnic minority groups, the Tujia have historically inhabited humid and hot regions, developing settlement patterns that embody profound climatic adaptation strategies. However, urbanization has severely reduced the number of surviving traditional settlements. Despite extensive field investigations conducted over an extended period, only two well-preserved courtyard structures were identified. Future research will continue to explore the region with the aim of locating additional historical remnants for further study.
This study employed climate adaptability research methods to systematically analyze the microclimate regulation effects of traditional courtyard architectures and alleyway spaces within Tujia ethnic settlements in hot and humid regions. The key findings derived from this research are as follows.
AR serves as a critical factor in microclimate regulation within the alleyways of this region. Specifically, spacious alleyways with lower AR values (AR < 0.5) facilitate a higher rate of heat exchange, thereby improving the overall efficiency of microclimate modulation.
Enclosed courtyard spaces tend to induce a wind duct effect within alleyways, resulting in a 50% increase in summer wind speed through these passages. This phenomenon accelerates heat exchange between the interior and exterior of the courtyard, thereby improving the microclimate regulation efficiency of the alleyway by 5.3%.
Columned alleyways and solid boundary alleyways exhibit comparable efficiency in microclimate regulation for courtyard spaces. However, the internal environment of solid boundary alleyways demonstrates superior microclimate performance. Notably, during winter, these alleyways can achieve an internal temperature increase of up to 350%, leading to a substantial improvement in the outdoor microclimatic conditions.
For urban settlement construction in this region, closed courtyard layouts combined with solid boundary alleys featuring an AR below 0.5 are recommended. These design strategies effectively optimize and enhance the microclimate environment within both courtyards and alleyways.
Data availability
All data generated or analyzed during this study are included in this published article [and its supplementary information files].
References
Cui, P. et al. Effect of street design on UHI and energy consumption based on vegetation and street aspect ratio: taking Harbin as an example. Sustain. Cities Soc. 92, 104484 (2023).
Fujiwara, K. et al. Microclimate Vision: Multimodal prediction of climatic parameters using street-level and satellite imagery. Sustain. Cities Soc. 114, 105733 (2024).
Shashua-bar, L., Tzamir, Y. & Hoffman, M. E. Thermal effects of building geometry and spacing on the urban canopy layer microclimate in a hot-humid climate in summer. Int. J. Climatol. 24, 1729–1742 (2004).
Uniyal, S. et al. Passive solar heated buildings for enhancing sustainability in the Indian Himalayas. Renew. Sustain. Energy Rev. 200, 114586 (2024).
Ucer, H. B. et al. Sustainable urban landscapes in hot-dry regions: climate-adaptive courtyards. Land 13, 1035 (2024).
Tang, K. et al. Temperature-adaptive radiative coating for all-season household thermal regulation. Science 374, 1504–1509 (2021).
Lin, L. & Gui, Y. The key factors of microclimate in courtyard-style architectural ensembles spaces—taking the Yi minority Tusi manor as an example. Build Environ. 270, 112553 (2025).
Lin, L. & Gui, Y. Why does the courtyard spaces of same ethnic group present diverse characteristics in different regions: evidence based on ENVI-met climate modeling. J. Clean. Prod. 466, 142703 (2024).
Lin, L. et al. Dynamic influencing mechanism of traditional settlements experiencing urbanization: a case study of Chengzi Village. J. Clean. Prod. 320, 128462 (2021).
Zheng, R. et al. Climate adaptive design improvement strategies of traditional dwellings in Southern Zhejiang for the plum rain season considering comfort conditions. Energies 13, 1–20 (2020).
Yang, W. et al. Fuzzy clustering-based climatic zoning method for building climate responsiveness in Qinba region, China. J. Build. Eng. 90, 109311 (2024).
Salameh, M. & Touqan, B. From heritage to sustainability: the future of the past in the hot arid climate of the UAE. Buildings 13, 0418 (2023).
Lozoya-peral, A. et al. Exploring energy retrofitting strategies and their effect on comfort in a vernacular building in a dry Mediterranean climate. Buildings 13, 1381 (2023).
Salameh, M. & Touqan, B. Traditional passive design solutions as a key factor for sustainable modern urban designs in the hot, arid climate of the United Arab Emirates. Buildings 12, 1811 (2022).
Zhang, H. H. & Zhang, C. H. Research on the traditional polycentric settlement of the Tujia Ethnic Group in Mudixi Village, Zhangjiajie. Urban Architectural Space 31, 92–94 (2024).
Tianqi, L., Hui, X. & Xu, W. Regionalism and interactivity: morphology and evolution of Tujia vernacular buildings with courtyard perspective in southeast Chongqing. Traditional Chin. Architect Gard. 6, 56–60 (2023).
Li, Y., Ran, D. & Lv, J. Impact factors of spatial distribution and the ecological environment suitability of Tujia traditional settlements in China under the background of sustainable development goals. Tehnicki Vjesn. Tech. Gaz. 31, 1763–1770 (2024).
Li, Y. et al. Spatio-temporal distribution and evolution of the Tujia traditional settlements in China. PLoS ONE 19, e0299073 (2024).
Gong, C. et al. Research on the characteristics and evolutionary factors of the plane form of Tujia traditional residences in Western Hunan. Des. Community 1, 152–160 (2024).
Guo, Y. et al. The right tree for the right street canyons: an approach of tree species selection for mitigating air pollution. Build Environ. 258, 111629 (2023).
Askarizad, R., Dauden, P. J. L. & Garau, C. Exploring the role of configurational accessibility of alleyways on facilitating wayfinding transportation within the organic street network systems. Transp. Policy 157, 179–194 (2024).
Alawadi, K., Alameri, H. & Scoppa, M. Reclaiming alleyways to improve network connectivity: lessons from Dubai’s neighborhoods. J. Plan. Educ. Res. 43, 917–939 (2023).
Wang, L. & Wei, H. Curved alleyway understanding based on monocular vision in street scenes. IEEE Trans. Intell. Transport. Syst. 23, 8544–8563 (2022).
Hansol, L. I. M. & Jeong-hann, P. Aesthetic experience of streetscape in Syarosu-gilas urban commercial alleyway. J. Korean Inst. Landsc. Architect. 49, 125–137 (2021).
Yoon-jung, L. E. E. & Ju, K. S. Systematic enhancement of the alleyway housing redevelopment project through complaint analysis. J. Econ., Mark. Manag. 12, 11–25 (2024).
Hana, Y. A study on the creation and utilization of place assets in urban regeneration: a case study of Daegu modern alleyway. J. Daegu Gyeongbuk Stud. 21, 69–89 (2022).
Noh, Y. 이진욱. A study on the activation of disappearing alleyway as local cultural resources: focused on cultural, social and economic value of the alleyway. Korea World Rev. 6, 167–195 (2024).
Choung, E.-H. Place identity-based alleyway history-culture regeneration: focusing on cases in Tokyo’s Kagurazaka. J. Korean Urban Geogr. Soc. 21, 63–78 (2018).
Lee, J. & Kang, Y. A dynamic algorithm for measuring pedestrian congestion and safety in urban alleyways. ISPRS Int. J. Geo-Inf. 13, 434 (2024).
Imai, H. The liminal nature of alleyways: understanding the alleyway roji as a ‘Boundary’ between past and present. Cities 34, 58–66 (2013).
Park, Y. K. 정은정. Study of how shapes and colors of alleyway effect its users safety emotions. J. Korea Soc. Color Stud. 28, 197–207 (2014).
Stephan, J. & Merhebi, S. Contextual non-physiological factors affecting outdoor thermal comfort perception in alleyways of El Mina Lebanon. Int. Plan. Stud. 30, 213–236 (2025).
Qaid, A. & Ossen, D. R. Effect of asymmetrical street aspect ratios on microclimates in hot, humid regions. Int. J. Biometeorol. 59, 657–677 (2015).
Aboelata, A. Vegetation in different street orientations of aspect ratio (H/W 1:1) to mitigate UHI and reduce buildings’ energy in arid climate. Build Environ. 172, 106712 (2020).
Butera, F. Energy and Resource Efficient Urban Neighbourhood Design Principles for Tropical Countries—A Practitioner’s Guidebook (2019).
Liggett, R. & Milne, M. Climate consulatant 6.0. Parallels Software International, Inc. 2008
Ma, Z. Down the alleyway: courtyard tenements and women’s networks in early twentieth-century Beijing. J. Urban Hist. 36, 151–172 (2010).
Huerto-cardenas, H. E. et al. Validation of dynamic hygrothermal simulation models for historical buildings: State of the art, research challenges and recommendations. Build Environ. 180, 107081 (2020).
Sa, Q. et al. The strategy of traditional Chinese settlement digitization: a landscape gene information chain theory-based perspective. Herit. Sci. 12, 234 (2024).
Tejsner, P. & Veldhuis, D. Climate change as (dis)equilibrium: behavioral resilience in the Greenlandic Arctic. Hum. Ecol. 46, 701–715 (2018).
Savvides, A. et al. Examination and assessment of insolation conditions of streetscapes of traditional settlements in the Eastern Mediterranean area. Habitat. Int. 53, 442–452 (2016).
Tafti, F. A., Rezaeian, M. & Razavi, S. Z. E. Sunken courtyards as educational environments: occupant’s perception and environmental satisfaction. Tunn. Undergr. Space Technol. 78, 124–134 (2018).
Soflaei, F. et al. The impact of courtyard design variants on shading performance in hot-arid climates of Iran. Energy Build. 143, 71–83 (2017).
Shadar, H. The evolution of the inner courtyard in Israel: a reflection of the relationship between the Western modernist hegemony and the Mediterranean environment. J. Isr. Hist. 32, 51–74 (2013).
Salameh, M., Abu-hijleh, B. & Touqan, B. Impact of courtyard orientation on thermal performance of school buildings’ temperature. Urban Clim. 54, 101853 (2024).
Nasrollahi, N. et al. Numerical evaluation of thermal comfort in traditional courtyards to develop new microclimate design in a hot and dry climate. Sustain. Cities Soc. 35, 449–467 (2017).
Acknowledgements
This research was funded by National Natural Science Foundation of China [grant number 52508084]; Traditional Craft Research Institute [grant number CTGY25YB06]; Sichuan Provincial Research Base for Consolidating the Awareness of the Chinese Nation Community, Institute of Ba Culture, Sichuan University of Arts and Science[grant number WLZL2024YB07]; Sichuan Revolutionary Old Areas Development Research Center[grant number SLQ2024SB-08];Sichuan Red Culture and Tourism Research Center[grant number HSWL24Y07];Sichuan Ethnic Handicraft Research Center[grant number SMS24-04]; Sichuan Landscape and Recreation Research Center [grant number JGYQ2025026]; Chengdu Research Center for Science Fiction Innovation and Urban Development [grant number CDKHCCX2025ZD03]; Sichuan Research and Travel Development Research Center [grant number YX-25-26]; Laboratory for Optimization of Indoor Space Layout and Security Assurance [grant number SNKJ202512]; Research Center for Meteorological Disaster Prediction, Warning and Emergency Management[grant number ZHYJ25-YB04]; Research Base for Consolidating the Sense of Community of the Chinese Nation of Sichuan Normal University [grant number CSDZL25-30]; Ecological Education Research Center [grant number STYB2501]; Sichuan Province Heritage Tourism Research Base [grant number ZD—202502]; Local Cultural Resources Protection and Development Research Center [grant number DFWH2025—030] and China Research Center for Modern Southwest Regional Politics and Society [grant number XNZZSH2502]; Wanda Kai Sichuan-Chongqing Coordinated Development Research Center[grant number WD2025B07].
Author information
Authors and Affiliations
Contributions
L.L.K. wrote the manuscript and designed the research framework. G.Y. provided research ideas, grasped the research direction, and proposed design concepts. All authors read and approved the final manuscript.
Corresponding author
Ethics declarations
Competing interests
The authors declare no competing interests.
Additional information
Publisher’s note Springer Nature remains neutral with regard to jurisdictional claims in published maps and institutional affiliations.
Supplementary information
Rights and permissions
Open Access This article is licensed under a Creative Commons Attribution-NonCommercial-NoDerivatives 4.0 International License, which permits any non-commercial use, sharing, distribution and reproduction in any medium or format, as long as you give appropriate credit to the original author(s) and the source, provide a link to the Creative Commons licence, and indicate if you modified the licensed material. You do not have permission under this licence to share adapted material derived from this article or parts of it. The images or other third party material in this article are included in the article’s Creative Commons licence, unless indicated otherwise in a credit line to the material. If material is not included in the article’s Creative Commons licence and your intended use is not permitted by statutory regulation or exceeds the permitted use, you will need to obtain permission directly from the copyright holder. To view a copy of this licence, visit http://creativecommons.org/licenses/by-nc-nd/4.0/.
About this article
Cite this article
Lin, L., Gui, Y. Microclimatic adaptability of alleyway in historical cultural heritage buildings based on ENVI-met simulations. npj Herit. Sci. 13, 651 (2025). https://doi.org/10.1038/s40494-025-02244-2
Received:
Accepted:
Published:
Version of record:
DOI: https://doi.org/10.1038/s40494-025-02244-2





























